Yhdyspankin uudisrakennuksen työohje        


Johdanto
Perustusten kaivaminen.
Maaperä ja perusmuuri
Sokkeli
Portaat
Tiilimuuraus
Rappaus ja laasti
Kirvesmiestyöt
Vesikatto, pelti- ja metallityöt
Sementti- ja asfalttityöt sekä portaikot
Puusepäntyöt
Välipohjat
Täyttötyöt
Tulisijat
Vesiputkistot
Kuivaus ja ilmastointi
Lasit
Valaistus
Maalaustyöt
Tonttia ympäröivä aita






        Johdanto     
 
 


Sivu 1
Raahen Yhdys-Pankin uudisrakennuksen työohje

          Rakennus toteutetaan valmiiksi kokonaisurakkana kivestä, kahdessa kerroksessa, kellarikerroksella ja varustetaan rapatuilla ulkoseinillä, peltikatolla, täydellisellä vesi- ja viemäriputkistoilla, kaakeliuuneilla, sähkövalo- ja puhelinjohdotuksilla, betoniholvipalkistolla jne. jne. piirustusten, tämän työselostuksen ja ensiluokkaisen talon vaatimien työmenetelmien mukaisesti.
Valmis rakennus avajaispäivän sanomalehtiartikkelissa.
          Talo sisältää kellarikerroksessa: erillisellä pihanpuoleisella sisäänkäynnillä kaikkien huoneistojen halkokellarin, kaksi lämmintä kellarihuonetta, pesutuvan ja kellarivaraston; ensimmäisessä kerroksessa pankkitilat, teräsbetonisen kassaholvin, kauppapuodin ja vahtimestarin huoneiston; toisessa kerroksessa: 4-huoneisen huoneiston keittiöllä, palvelijanhuoneella, eteisellä, kylpyhuoneella, tarjoiluhuoneella ym. sekä 2-huoneisen huoneiston eteisellä ja WC:llä; ullakolle järjestetään pankin, myymäläpuodin, johtajanhuoneiston, kaksion ja vahtimestarin varastototilaa.
Alkuperäinen halkileikkaus.
          Talo rakennetaan tontille, jolla on aiemmin sijainnut puutalo. Puutalo on purettu; talon sokkelista ja perustuksesta jääneitä kiviä urakoitsija saa maksutta käyttää sopiviin kohtiin. Suuri määrä perustus- ja sokkelikiviä on talven aikana jo haettu rakennuspaikalle pankin toimesta ja urakoitsijan on lunastettava ne samaan hintaan, minkä pankki on niistä maksanut. Pankki maksaa kivifirma Kiviselle valmiiksi ladotusta(?) veistetystä(?) sokkelista 34,20 Suomen markkaa neliömetriltä ja kiilatusta(?) sokkelista 15,20 mk/m2. Perusmuurista valmiiksi ladottuna(?) 11,40 mk/m3.
Koulukatua 1800-luvun lopulla.
          Kadunpuolelle tehdään reunakivillä varustettu kivetty jalkakäytävä koko kulmatontin pituudelle. Rakennus sijoitetaan noin 1 metrin etäisyydelle molemmista kaduista, joten jalkakäytävän on siis ulotuttava aina sokkeliin saakka. Jalkakäytävän reunakivet veistetään.
Kirkkokatua 1925.
          Sen jälkeen kun rakennus on tullut valmiiksi, urakoitsija toimittaa rakennuspaikalta pois kaiken roskan ja romut ja luovuttaa pankille kaiken siivotussa ja puhdistetussa kunnossa. Pihanpuolelle sokkelin viereen tehdään noin 1 metrin levyinen, kivetty, hieman pihalle päin viettävä kävelytie.

Sivu 2



        Perustusten kaivaminen.    
 

Perustusten kaivaminen tehdään niin laajalle alueelle, kuin kellarikerros ja perusmuurit edellyttävät.



        Maaperä ja perusmuuri    
 

  
Maaperä koostuu hyvin hienojakoisesta - mahdollisesti jossain määrin savensekaisesta - hiekasta. Perustus rakennetaan sillä tavoin kun maaperän ominaisuudet vaativat, jotta talo saa riittävän stabiliteetin. Perusrakenteen vahvisteena voidaan käyttää karkean soran päälle rakennettua arinaa tai betonilaattaa, jonka päälle perusmuuri rakennetaan. Myös on mahdollista, että maaperä on niin hyvälaatuista, että peruskivet voidaan asettaa suoraan sen päälle, riittävään syvyyteen. Tähän liittyen on ennen perustustöiden alkamista yhdessä pääarkkitehdin kassan päätettävä, mitä menetelmää tullaan käyttämään. Alhaalta perusmuuri tehdään vähintään 1,2 metriä leveäksi, 2,5 metrin syvyyteen. Kassaholvin alapuolen koko perustus tehdään kivistä tai betonista. Jos perusmuuri tehdään kivestä, siihen käytetään ainoastaan kiilatusta tai räjäytetystä kivestä, hyvin sidottuina(?). Perusmuurin yläosa muurataan, lujitetaan raudoituksella(?) ja ulkopuoli tasoitetaan sementinsekaisella laastilla. Perusmuuriin jätetään tartuntaraudat(?) tiilikerroksen kiinnitykseen. Ulommaisten perusmuurien on sijaittava 10 cm jalkakäytävän ja pihanpuolin kävelytien tason alapuolella. Perusmuuriin jätetään aukot vesi- ja viemäriputkistoille. Kaikki perusmuurit eristetään hyvin huolellisesti asfaltilla tiilimuuria vasten, siten että vesi ei voi päästä seinien läpi kellareihin.

../valokuvat/ohjeeseen/kellarin_piirustus.jpg




        Sokkeli     
 



 
          Kadunpuolen sokkeli tehdään veistetystä yhdenvärisestä graniitista. Pihanpuolen sokkeli tehdään kiilatusta graniitista. Sokkelin tehdään piirustusten mukaisin pystysuorin ja vaakasuorin saumoin ja saumataan koverilla saumoilla. Rakennustyön aikana sokkelia suojataan savivellillä. Sokkeli eristetään sisä- ja ulkopuolelta hyvin huolellisesti, kuumennetulla asfaltilla.


Sivu 3
tu- och gårdsfasadritninragna där smygdjupet finnes angivet.




        Portaat     
 


            Kaikki ulkoportaat ja kynnykset, porrastasanteet ja sivurakenteet tehdään pankkihuoneiston sisäänkäynnin kohdalla hienoksi veistetystä graniitista ja muiden sisäänkäyntien kohdalla karkeasti veistetystä graniitista. Kaikki ulkopuoliset portaikot perustetaan hyvin ja saumataan sementillä. Kauppapuodin sisäänkäynnin portaat ja porrastasanne tehdään piirustusten mukaisesti graniitista. Sisäänkäynnin viereinen pylväs tehdään karkeasti veistetystä graniitista, mutta sen saa tehdä myös rapatusta betonista.

../valokuvat/ohjeeseen/graniitti_perustuksessa.jpg




        Tiilimuuraus     
 


            Kaikki muurauksessa ja muissa rakennusaikana tarpeellisissa töissä tarpeelliset rakennustelineet pystytetään riittävän vahvarakenteisina, urakoitsijan toimesta. Kaikki seinät tehdään ensiluokkaisesta punaisesta tiilestä, hyvin liitoksin. Tiilen hinta on tarjouksen mukaan 57 markkaa tuhannelta vapaasti vaunusta Raahessa, Topin tehtaalta, ja näitä käytettäköön. Kellarimuurauksen ensimmäisiin kerroksiin, suuremman rasituksen alle ja rautapalkkien alustoiksi käytetään kovia tai rautapoltettuja(?) tiiliä sementtilaastilla. Seinämuurit luotisuorataan hyvin ja ladotaan ristilimityksellä.


Kuva syksyltä 2006. Rappausvaurion alta paljastuu ristilimityksellä ladottua seinämuuria.

Seinämuurit kohotetaan yhtäaikaisesti ja sateisella ilmalla peitetään huolellisesti asfalttipahvilla. Siellä missä se on mahdollista, kaikki ulkomuurit muurataan ilmakerroksella(?). Sitovina ja kantavina rakenteina rautapalkit, raudoitukset ja ankkuriraudat upotetaan muurauksiin rakennepiirustusten mukaisesti ja kaikkialla missä niin on tarpeellista, ja vahvistetaan raudalla sekä sementtivellillä ennen asettamista. Kauppapuodin ja pankkisalin välinen seinä rakennetaan siten, että tulevaisuudessa sen voi vaaratta poistaa ts. ylempiä seiniä ja palkistoa kannattelee kyseisessä seinässä sijaitsevat teräsbetonipilari sekä teräsbetonipalkki. Pankkisalin molemmat pylväät tehdään niin ikään teräsbetonista. Savuhormit ja ilmanvaihtohormit tehdään seinämuurien sisään piirustusten ja ohjeiden mukaisesti. Keittiön hellojen hormit tehdään 15 x 17 cm ja 15 x 30 cm kokoisiksi, vastaavasti ruokasalinuunille 15 x 20 cm ja kaikille muille uuneille 15 x 17 cm. Hormit on muurattava huolellisesti samassa tahdissa kun seinämuuri kohoaa, ne harjataan pensselillä. Raitisilmaventtiilejä ei tarvitse asentaa niihin huoneisiin, joihin on mahdollista asentaa terveysikkuna.
            Ovien ja ikkunoiden karmit asennetaan samanaikaisesti muuraustyön kanssa, minkä yhteydessä huomioidaan:
            a) että julkisivujen ylempien kerrosten ikkunat asetetaan 5 cm syvyyteen ja alemman kerroksen 10 cm (tai 19 cm?) syvyyteen ja muilta osin katu- ja pihajulkisivupiirustusten mukaisesti, joihin syvyys on merkittynä.



Sivu 4

          b) että ne kohdistetaan hyvin ja että työn kuluessa ne suojataan päälle naulatuilla väliaikaisilla ikkunalevyillä tai vastaavasti kynnyksillä.
          c) että ne pystytetään irtokiilojen avulla, jotka rakennuksen painuttua(?) otetaan pois, minkä jälkeen ne vielä kertaalleen huolellisesti kohdistetaan.
          d) että kaikki karmit ovat tervattuja ja varustettuja ulospäin suuntautuvilla rimoilla, karmien paremmaksi kiinnittämiseksi seinämuuriin.
          e) että seinäaukon ja karmin välissä on kaikkialla vapaa 10 - 20 mm rako.
          f) että ennen asennusta kaikki karmit ovat hyvin pohjustetut, tervatut ulkopuolelta ja verhotut mielellään tervatulla satulahuovalla.
          Ennen rappaustöitä karmit tilkitään tervatuilla tilkkeillä huolellisesti. Ikkunanlaudat tehdään betonista. Seinämuurit muurataan avoimilla saumoilla, joilla annetaan kiinnityspintaa rappaukselle. Ellei tuuletusikkunaa ole, niin jokaisessa huoneessa, eteisessä, kylpyhuoneessa, WC:ssä ja naulakkohuoneessa on oltava ilmaluukku, joko suoraan ulos tai hormin kautta savupiippuun. Julkisivun puoleisen tuuletusaukot sijoitetaan ainoastaan arkkitehdin tarkempien ohjeiden mukaisesti. Ullakko varustetaan palolattialla, kaupungin rakennussäännön tai palovakuutusyhtiön vaatimusten mukaisesti.




        Rappaus ja laasti    
 


            Laastina käytetään hyvää kivetöntä hyvin sammutettua ja hyvin säilytettyä kalkkia, jota rakennuspaikalla säilytetään hyvin peitettynä. Valmistettaessa se sekoitetaan hyvin 2 - 3 osaan hiekkaa, jonka tulee olla puhdasta, teräväsärmäistä, ei liian hienojakoista, vapaata suoloista ja mullasta. Kaiken käytettävän veden tulee olla makeaa. Rappaukseen käytetään saman tyypistä kalkkia ja sekä kadunpuoli että pihanpuoli rapataan huolellisesti työ- ja yksityiskohtien piirustusten sekä arkkitehdin ohjeiden mukaisesti. Arkkitehdin tulee hyväksyä rappauspinta. Kaikki sisäkatot ja ensimmäisen kerroksen seinät rapataan sileiksi (noin 15 mm). Kellarikerroksessa rapataan ainoastaan varastokellarit ja pesutupa sekä portaikko. Sisäpuolinen kattolista tehdään vain vähän pyöristetyksi. Pankkisalissa ja ruokasalissa on monipuolisempi kipsinen kattolista. Katujulkisivujen ulko-ornamentit valmistetaan kipsistä. Kaikki terävät kulmat ja listat rapataan sementin kanssa sekoitetulla laastilla. Savupiipunvarret(?) ullakolla lietetään kalkkilaastilla.


Sivu 5
          Kaikki ohuet väliseinät (lukuun ottamatta ohkaisempia vaatekomeroseiniä, jotka tehdään laudoista ja kellarin väliseiniä, jotka muurataan kyljilleen(?) ladotuista tiilistä) tehdään cloison-seiniksi, so. 2 tuuman lankut halkaistaan ja spliitataan(?), lankkujen väliin asetetaan kaksinkertainen luonnonruskea pinkopaperi, minkä jälkeen kumpikin puoli tikutetaan ristiin ja rapataan ulkopinnaltaan. Sopivissa kohdin, arkkitehdin ohjeiden mukaisesti vaatekaappien, ruokakomeroiden ja WC:n yläpuolille sijoitetaan ovella varustettuja yläosastoja. Kaikki väliseinät lepäävät suoraan rautapalkkien ja betonin(?) päällä siten että seinien läpi ei saa kulkea mitään koolauksia.
../valokuvat/ohjeeseen/rapatun_seinan_rakenne.jpg
Esimerkki cloison-seinästä. Yksityiskohta henkilökunnan entisen wc:n seinärakenteesta.

Ulkopintojen rappauksen voidaan ryhtyä heti kun ulkokatto on valmis, seinämuuri on puhdistettava pölystä ennekuin rappaus levitetään. Sisäpuolen rappauksiin voidaan ryhtyä 8 viikon kuivausuunilämmityksen jälkeen.

Listoitus ja profiilit vedetään sablonilla. Katon ja seinien sisäpuolinen rappaukset, jotka tulevat liima- tai öljymaalattaviksi, saakoot viimeisen kerroksen hienompaa laastia siten, että pintaan ei jää mitään suurempia naarmuja tai epätasaisuuksia.
          Erityistä huomiota on kiinnitettävä siihen, että rappauksen tulee olla tasainen ja yhtenäinen, sekä myöskin että huolellinen vattrivning tehdään.
          Kaikkialla, missä rapataan puupintaa, tulee alustalle tehdä tikutus. Hienorappauksessa tulee huomioida, että rappaajat eivät saa lisäillä kuivaa kalkkia, ja että laastia saa käyttää vasta kun se on valmistunut pari päivää.
          Jos muuraushiekka sisältää kiviä, on se sihdattava. Hiekka ei saa ottaa suolaisen veden rannalta, tiiliseen seinämuuriin ja tavalliseen rappaukseen keskihienoa hiekkaa ja maalattavien pintojen rappaukseen hienojakoista hiekkaa.




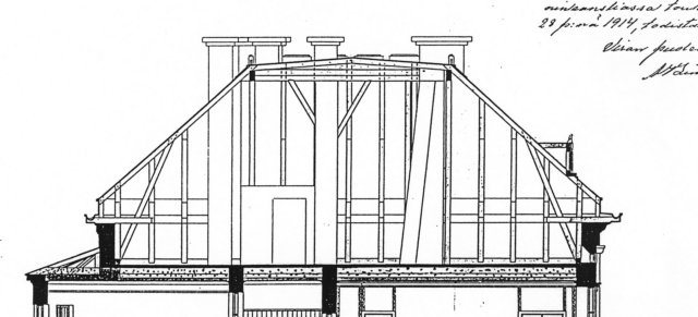
        Kirvesmiestyöt     
 


            Kaikkien puutarveaineiden tulee olla mahdollisimman oksatonta, vapaata sinisyydestä, valuvasta pihkasta ja huomattavista ydinsäteistä. Kattotuolit asetetaan korkeintaan 90 cm välein, mitattuna keskikohdasta keskikohtaan. Kaikki kattotuolit tehdään 5" x 5" veistetyistä saloista, mutkat(?) ja tukipilarit 6 tuuman saloista. Kattotuolien tulee olla erittäin hyvin yhteen liitettyjä ja suoriksi oikaistuja.

../valokuvat/ohjeeseen/ullakon_piirustua.jpg

../valokuvat/ohjeeseen/kattotuoleja.jpg



Sivu 6





        Vesikatto, pelti- ja metallityöt     
 


  : 

../valokuvat/ohjeeseen/peltikaon_nurkka.jpg

            Ulkokatto tehdään osittain aallotetusta galvanoidusta ja osittain sileästä galvanoidusta pellistä. Kaikki savupiiput, katonharjat, koristeet, listat, kuvut, räystäät, räystään ja ulkoseinän väliset listat tehdään galvanoidusta pellistä puualustalle yksityiskohtia esittävien piirustusten mukaisesti. Katolle rakennetaan vinttikamareita. Julkisivun kaikki isommat listat ja ornamentit peitetään pellillä.
            Katon rakentamisessa on huomioitava:
            Että räystäskourut varustetaan 12 cm pystyreunalla, joka tuetaan takorautakoukuilla sisäpuolelta mitattuna korkeintaan 1 metrin etäisyydellä toisistaan.
            Että kattopeltiä ei missään saa läpi naulata, vaan se täytyy kiinnittää klammereilla sekä sisääntaitella(?) pystysuorissa huulloksissa.
            Että palo-ovet osoitetuissa kohdin valmistetaan kaupungin palomääräysten mukaisesti.
            Pihan puoleiselle seinälle muurataan palotikkaat aina kattolistan koreuteen saakka sekä vesikattoa pitkin aina katonharjalle saakka.
            Tarpeellinen määrä galvanoidusta pellistä tehtyjä syöksytorvia asetetaan paikoilleen, neliskanttisia (12 x 15) kadulle päin, pyöreitä (14 x 14) pihan puolelle.
            Kaikki ikkunalaudat peitetään galvanoidulla pellillä ja pelti taitellaan siten, että vesi ei voi tunkeutua ikkunanpuitteisiin tai valua kiviseinää pitkin.
            Varastokellariin vievien portaiden katto päällystetään galvanoidulla pellillä
            Piiskausparvekkeelle järjestetään yksinkertainen, tukeva, rautainen kaide. Suuri portaikko ja keittiöportaikko yksinkertaiset rautakaiteet, varustetulla kiillotetulla koivuisella kaidepuulla suuressa portaikossa ja metalliputkella keittiöportaikossa. Yksinkertaiset rautaiset kalterit asennetaan julkisivun ensimmäisen kerroksen ikkunoiden alle.
            4 kpl yksinkertaisia ulkovalaistuslyhtyjä asennetaan piirustusten mukaisesti pankin ja myymäläpuodin sisäänkäynneille, sekä yksi lyhty myymäläpuodin sisäänkäynnin viereen pylvään päähän.

          



        Sementti- ja asfalttityöt sekä portaikot     
 


  


            Kassahuoneessa katto, seinät ja lattia tehdään ohjeiden mukaisesti betonista sekoitussuhteessa 1:5, sisään valetuilla lattaraudoilla ja graniittisirpaleilla. Kassahuoneen ovi, jonka pankki maksaa ja toimittaa, myös kiinnitetään pankin toimesta


Sivu 7


sementtivalulla ja holvin valun yhteydessä oviaukkoon sojottamaan jätettyihin vaakasuoriin lattarautoihin kiinnittämällä. Kassaholviin järjestetään tuuletusventtiili ylös savupiippuun. Mitkään putket eivät saa kulkea kassaholvin lävitse.
            Kellarista vintille johtava keittiöportaikko tehdään vapaasti(?)kantavaksi harmaasta sementistä.
            Suuren portaikon kaikki askelmat ja tasot tehdään sementtimosaiikista.
            Kellarinlattia tehdään betonista maan ja soran päälle ja eristetään betonilla ja asfaltilla vedenpaineelta ja kosteudelta. Kylpyhuoneisiin ja vessoihin tehdään asfalttilattia, joka peitetään arkkitehdin valinnan mukaisilla Mettlach-laatoilla (à 7,50 mk/m2 .) Pankkitilossa lattia tehdään pankin eteiseen, asiakastilojen puolella ja kassaholvissa betonin päälle Mettlach-latoilla (à 7,50 mk/m2). Myymäpäpuotiin koko lattia tehdään betonin päälle Mettlach-laatoilla (à 7,50 mk/m2. Jätevesi(?)kaivot muurataan asfalttiin rauta(?)poltetuista tiilistä. Kellarikerroksen pesutupaan tehdään lattia sliipatusta sementistä, vesikouruilla ja lattiakavioriritilällä.

          



        Puusepäntyöt     
 


 
            Kaiken puusepän tarveaineen tulee olla kuivaa honkaa puutavaraa ja sama pätee myös vastaaviin tarkoituksiin kuten kirvesmiehen puutavara-aineksiin. Kaikki ikkunankarmit tehdään 2½" x 8" mäntypuusta. Pokat eli puitteet tehdään ulospäin- ja sisään päinaukeaviksi. Kaikki ikkunat tehdään kaksinkertaisilla puitteilla ja ne tehdään erillisten ja erityisen yksityiskohtapiirustuksien mukaisesti. Ulommat puitteet varustetaan 6 mm syvällä vesinenällä.
../valokuvat/ohjeeseen/ikkuna_sivulta.jpg
Puitteet varustetaan arkkitehdin tarkempien piirustusten mukaisesti saranoilla, hakasilla, salvoilla, kulmaraudoilla, tuulisäpeillä(?) ja heloilla. Ikkunalaudat betonista. Vintin ikkunat ja sisätilojen ikkunat tehdään yksinkertaisilla puitteilla.
            Pankin sisäänkäynnin ovista ulompi voidaan tehdä tammesta, messinkiheloilla ja messinkikädensijalla - tämä ovi on sisältäpäin lukittava. Ovenkarmit tehdään 2½ x 6 tuuman tarveaineesta. Ohuempien seinien ovien karmien syvyys tehdään suhteessa seinän paksuuteen. 80 cm ja leveämmät ovet


Sivu 8


tehdään 2 tuuman kehikko(?)puutavarasta. Ovet tehdään erillisten erityispiirustusten mukaisesti ja heloitetaan kestävillä saranoilla, upotetuilla lukoilla ja näteillä messinkisillä väännettävillä ovenkahvoilla.
            Eteisten ovissa olkoon soittokello, nimikivellä varustettu kirjelaatikko, korrekti messinkinen ovenkahva, amerikkalainen lukko sekä triss(?)lukko. Vaatekomeroiden ovet saakoot yksinkertaisemmat lukot. Ullakon ovi pellitetään. Ovien karmilistoitus tehdään ohjeiden mukaan, 8 cm leveänä. Ikkunoiden ja ovien yläpuolilla asennetaan verhokoukut.
            Keittiö varustetaan pankinjohtajan huoneistossa kaksiosaisella sinkityllä tiskipöydällä ja pienemmällä ja yksinkertaisemmalla tiskipöydällä vahtimestarinhuoneistossa. Tiskipöytä rakennetaan ovelliseksi kaapiksi. Keittiössä on oltava kaappeja keittiötarvikkeita varten. Tarjoiluhuoneeseen tulee yksinkertainen kaappi. Ruokakomerot varustetaan hyllyillä. Vaatekomerot ohjeiden mukaan hyllyillä ja ripustimilla. Pankkisalin eteistä lukuun ottamatta muut eteiset varustetaan petsatusta koivusta tehdyillä vaateripustimilla sekä hattuhyllyillä. Pihalle tehdään sementistä talousjätelaatikko sekä palotyökalujen säilö.

          



        Välipohjat    
 

Välipohjat oheisen piirustuksen mukaisesti: 

Sivun 8 kuva

   - asfalt eller lumppapp = asfalttia tai lumppupahvia(?)
  - golv 1½" x 4" = lattia 1½ x 4 tuumaa
  - Skålning =   - laastivalu/jäte(?)
  - asfaltfilt = asfalttihuopaa
  - klossar = klosseja (alustana ja tukena käytetty puunkapale, klossi, tölkkä, pölkky)
  - 450. torvströ = 450. turvepehku
  - beton = betoni
  - rappning = rappaus
  - säckväv = säkkikangas.


Asfaltfilt lattian tulkirakenteen ja betonilaatan välissä (ruokasali)



Lumppapp lattianiskan ja lattialautojen välissä. Ruokasali


            Välipohjat rakennetaan rauta-aisoista(?) ja betoniholvilla tai arkkitehdin hyväksymänä teräsbetonivälipohjana. Myös palkkiluoettelo/luonnos, jos rautapalkkeja käytetään, on hyväksytettävä arkkitehdilla.Välipohjasta tehdään mahdollisimman äänieristävä.
            Kaikki lattiat tehdään 1½" x 4" mäntylankuista, joiden tulee olla höyrykuivattuja sekä mahdollisimman oksattomia ja virheettömiä. Kaikissa puulattioissa olkoon ohjeiden mukaiset jalkalistat.



Sivu 9






        Täyttötyöt   
 


Täyttötyöt tehdään sitten, kun betoniholvi on kunnollisesti kuivunut ja kaikki rappaustyöt on tehty sekä koolaukset on asetettu paikoilleen. Betonivalua lähimmäs asetetaan täysin kuivaa, hyvää turvepehkua ja sen päälle kuivaksi kuumennettua hiekkaa tai laastijätettä. Vessojen ja kylpyhuoneiden alapuoliset täytteet tehdään rakennusjätteestä ja betonista, joidenka päälle betonia ja asfalttia. Kylpyhuoneen lattia olkoon lievästi kalteva kohti lattiakaivoon vievää lattiaritilää. Kylpyhuoneeseen ja WC-huoneisiin tehdään vedenohjaus(?)listat asfaltista.





        Tulisijat    
 



../valokuvat/ohjeeseen/kakluunit_piirustuksessa.jpg

            Koko rakennus lämmitetään ensiluokkaisilla, arkkitehdin valinnan ja tarkempien ohjeiden mukaisilla kaakeliuuneilla.
pankisalin kaakeliuuuni
Pankkisalin kaakeliuuni. Uuni on Valter Thomén suunnittelema.
Turun Kaakelitehdas. Luoettelo vuodelta 1920. Uuni nro 268.
Kuvalähde www.kansalliskirjasto.fi Digitoidut arkistot. Pienpainatehaku.

Kaakeleiden nettohinta on noin 150 markkaa uunilta ja niiden tulee olla ensiluokkaisia. Uuni varustetaan kaikilla tarvittavilla tarvikkeilla, kuten kaksinkertaisilla kakluuninluukuilla, nokiluukuilla, pelleillä, kettingillä, venttiileillä jne. Galvanoidusta pelistä valmistettu suojapelti asetetaan jokaisen uunin eteen.
../valokuvat/ohjeeseen/kakluuni.jpg
Uuninmuurauksessa käytettäköön riittävää määrää tulenkestäviä tiiliä ja tulenkestävää savea. Paremmissa huoneissa käytetään messinkisiä ulompia kaakeliuuninluukkuja, vähäisemmissä valurautaisia. Hyvän vedon varmistamiseksi kaikki uunit on muurattava hyvin huolellisesti, varustettava mahdollisimman monilla hormeilla sekä testattava. Ne sijoitetaan arkkitehdin lähempien ohjeiden mukaisesti.
Turun kaaklei
Pankinjohtajan ruokasalin kaakeliuuni. Uuni on Valter Thomén suunnittelema.
Turun Kaakelitehdas. Luoettelo vuodelta 1925. Uuni nro 263.
Kuvalähde www.kansalliskirjasto.fi Digitoidut arkistot. Pienpainatehaku.

Keittiöhelloiksi asetetaan Högforsin malli n:o 2 pankinjohtajanhuoneistoon ja N:o 3 vahtimestarin huoneistoon. Ne on varustettava liesikuvulla, paistinuunilla, osavledarella(?), kuparisella vesisäiliöllä ja lämpökaapilla. 18" kaakelia käytetään jalustaan ja kahteen kerrokseen seinälle. Keittiönhellojen ympärillä olkoon 35 cm:n levyinen peltisuikale.
hellat
www.kansalliskirjasto.fi Digitaaliset kokoelmat. Pienpainatteet. Högforsom tehdas Osakeyhtiön kuvasto.
Kuvaston painovuotta ei ole vielä pystytty tarkistamaan.


Pesuhuoneeseen asennetaan yksinkertainen ...???

Sivu 10





        Vesiputkistot    
 


            Veden järjestämiseksi rakennukseen se varustetaan täydellisellä kylmävesijohtojärjestelmällä, ensiluokkaisen vesijohtofirman tekemänä arkkitehdin hyväksymänä projektina, vedentulolla ja vedenpoistolla ja jätevesikaivoilla. Vedentuloa varten pihalle rakennetaan sementtirenkaista riittävään syvyyteen ja hyvään pohjaveteen vesikaivo, josta sähköisellä pumpulla vesi pumpataan rautaiseen tai sementtiseen säiliöön vintille. Tästä säiliöstä vesi johdetaan kaikkiin vesihanoihin.
            Keittiö varustetaan vesihanalla tiskipöydän ja kaatoaltaan(?) yhteyteen ja joissa molemmissa olkoon viemärit ilmalukolla jne. Kylpyhuoneeseen ja kaikkiin vessoihin asennetaan posliiniset käsienpesualtaat vedentulo- ja viemäriliittymillä. Kylpyhuoneessa on emaloitu kylpyamme ja kuparinen kylpykamina, vedenannosteluhana, suihku ja viemäri. Kaikki WC:t tehdään kestävästä vantaalaisesta(?) mallista mahonki-istuimilla, sekä posliinisilla pissoareilla, kaikki hyvällä vedentulolla ja hyvällä viemäröinnillä. WC:t tehdään hajuttomiksi. Keittiöportaikon yleinen WC saa pienen posliiniset pesualtaan. Kellarikerroksen pesutupa saa vedentulon hanat sekä viemäröinnin. Kaikki hanat ovat messinkisiä ja kaikki tarvikkeet ensiluokkaisia. Vesijohtoputket galvanoituja. Jätevesikaivot tehdään kaksiosaisina vesijohtofirman piirustusten mukaisesti. Jätevesikaivoista poistoputki merkitylle kohtaa. Paloposti ja paloletku sijoitetaan pihalle ja vintille. Vesijohtoputket asetetaan siten, etteivät ne aiheuta häiriötä asuinhuoneisiin. Pihalle rakennetaan viemärikaivo siten, että sadevesi tulee johdatetuksi pois.


Sivu 11
av arkitekten godkänd firma. En elektrisk lampa anbringas på pelaren vid butikens ingång.





        Kuivaus ja ilmastointi     
 


  


            Sen jälkeen kun rakennus on katon alla ja ikkunat on väliaikaisesti suljettu, tulee rakennus kuivata väliaikaisten nk. kuivausuunien avulla (?) arkkitehdin määräysten mukaisesti, vähintään yhdellä joka huoneessa, lisäksi peltiputkilla, jotka sallivat uunien liikkua huoneen läpi. Uuneja lämmitetään voimakkaasti, samanaikaisesti tapahtuvan tehokkaan ilmanvaihdon aikana.

            Muurauksesta kertovassa kappaleessa on jo aiemmin puhuttu huoneiden varustamisesta raitisilma- ja poistoilmaventtiileillä. Pankkisali varustetaan tehokkaammalla ilmanvaihdolla, vähintään 2 kappaleella venttiileitä tai terveysikkunoita.




       Lasit     
 



            Käyttöön tulevan kaiken lasin tulee olla ensiluokkaista suomalaista ikkunalasia. Pankin sisäänkäynnin ulompi ovi saa viistereunaiset peili(nsileät?)lasit. Joissakin sisätilojen ikkunoissa käytettäköön matta- tai läpinäkymättömiä laseja. Väliovien lasit aseteltakoon piirustusten mukaisesti.
 


       Valaistus    
 




            Täydelliset sähkövalaistusjohdotukset asennetaan ja ??? johdot lyijyputkien sisäät, rappauksen alle. Johdot vedetään jokaisen katon keskikohtiin, makuuhuoneissa ja herrainhuoneessa seinäpistorasioihin, sekä molempiin pankkisalin kattokruunuihin sekä kassan lattiaan ja molempien työpöytäryhmien alle. 4 kappaletta ulkolamppuja järjestetään piirustusten mukaisesti. Paraatipuolen (suuri-) ja keittiöportaikko saakoot sähkövalaistuksen, paraatipuolen portaikko automaattisen valaistuksen. Myymäläpuoti(?) saakoon sähköjohdotuksen ikkunoihin. Sähköiset soitokellojohdotukset laitettakoon pankkiin sekä johtajan huoneistoon. Sähköjohdot järjestetään ... ???


Sivu 12




       Maalaustyöt    
 



            Huoneiden seinät sliipataan, liisteröidään, liitoskohdistaan(?) patentoidaan, makuloidaan ja tapetoidaan. Tapetin hinta 1,25 rullalta ja pankkisaliin 2 markkaa rullalta. Toiletti, WC, keittiö ja eteinen tapetoidaan kiiltävillä pesunkestävillä tapeteilla hintaan 1,25 rullalta. Kylpyhuone spaklataan ja öljymaalataan 3 kertaan. Kaikki sisäkatot vattriivataan, seissatan ja maalataan valkoisella liimavärillä. Reunakoristeet(?) tai kapeat kulta- tai mahonkilistat asetetaan katonrajaan. Ruokakomerot, vaatekomerot ja pankin kassaholvi maalataan öljymaalilla 2 kertaan. Myymäläpuoti maalataan ohjeen mukaan liimavärimaalilla ja saa katonrajaan sablonilla maalatun koristevyön. Kaikki puulattiat pohjustetaan, spaklataan, maalataan läpikuultavalla värillä ja lakataan. Niitä ei saa peittää linoleumilla ennen kuin puolitoista vuotta on kulunut talon valmistumisesta. Linoleumimatot eivät kuulu urakkaan. Kaikki jalkalistat, kynnykset, vuorilaudat ja kaikki näkyvissä oleva puinen sisustustyö spaklataan ja öljyvärimaalataan ensiluokkaisella tavalla.

            Kaikki ikkunat ja ovet, sisäpuoliset ikkunalaudat ja komerot maalataan maalarimestariklubin ensimmäisen luokan tariffin mukaan (pohjustetaan, spaklataan, silitetään(?) hiomalla ja maalataan 3 kertaan.) Portaikossa katto sekä seinät seissataan(?) ja maalataan liimavärillä arkkitehdin ohjeiden mukaan. Paraatipuolen portaikossa paneeli maalataan 1,6 metrin koreuteen öljymaalilla ensiluokkaisesti. Paneli saa piirustusten mukaisen sablonilla maalatun koristevyön. Keittiöpuolen portaikko saa öljyväripaneelin ilman spaklausta, kolmeen kertaan siveltynä. Arkkitehdin ohjeiden mukaisen koristeviiva vedetään keIttiöpuolen portaikkoon ja kylpyhuoneeseen. Kipsiset kattoruusukkeet, 50 penniä kappale, asetetaan kaikkiin huoneisiin. Kaikki näkyvillä oleva metallityö maalataan öljyvärein. Rakennuksen ulkopuoli maalataan 2 kertaan arkkitehdin tarkempien ohjeiden mukaisesti.

            Pankkisalin katto päällystetään kankaalla ja liimavärimaalataan. Pylväissä ja kattolistoissa olkoon kipsiset ornamentit.
../valokuvat/ohjeeseen/tolpan_koristeet.jpg

            Kaikki maalaustyöt teetettäköön arkkitehdin hyväksymällä maalausliikkeellä.


Sivu 13






        Tonttia ympäröivä aita     
 


  

../valokuvat/ohjeeseen/koulukadun_aita.jpg        ../valokuvat/ohjeeseen/kirkkokadun_aita.jpg

ja portti toteutetaan kadunpuoleisten piirustusten mukaisesti niin pitkälle kuin kulmatontti ulottuu.
            Kaikessa muutoin rakennus toteutetaan pääpiirustusten, yksityiskohtapiirustusten, työpiirustusten ja työselosteen sekä arkkitehtitoimisto Valter och Ivar Thomén lähempien ohjeistusten ja ohjeiden ja Raahen kaupungin voimassaolevan rakennusohjeen mukaisesti.
            Rakennuksessa tulee olla vesikatto lokakuussa 1914 ja täysin valmiina lopputarkastusta varten syksyllä 1915.
            Urakkasopimus tehdään arkkitehtiklubin tekemän kaavakkeen mukaisesti.
          
Helsingissä 31. pnä maaliskuuta 1914.
Arkkitehtitoimisto
Valter & Ivar Thomé
Valter Thomé