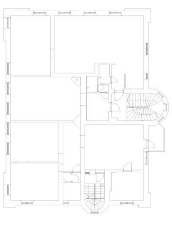
Toisen kerroksen pohja.

Photograph

Oulun Yliopisto. Arkkitehtuurin osasto. Arkkitehtuurin historia II. Mittauspiirustus. Kirkkokatu 20, Raahe. toisen kerroksen pohja 1:50. Mitattu 23.9.2005. Piirretty 9.12.2005. Jaana Keränen k-04, Antti Koivula k-04, Karoliina Saviluoto k-04. Tuulikki Tanska k-03.

Tämä ArchiCAD-ohjelmalla tehty dwg-pohjapiirustus on ladattavissa internetissä. Tiedoston katseleminen käy esimerkiksi DWG TrueView -ilmaisohjelma.

Created with Web Album Generator