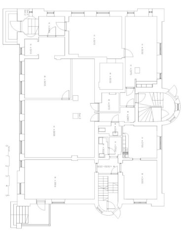
Ensimmäisen kerroksen pohjapiirustus.

Photograph

Oulun Yliopisto. Arkkitehtuurin osasto. Arkkitehtuurin historia II. Mittauspiirustus. Kirkkokatu 20 Raahe. Ensimmäisen kerroksen pohjapiirustus 1:50. Mitattu 23.9.2005. Piirretty 27.11.2005. Heikki Riitahuhta k02, Einari Sutinen k04, Mona Kautti k04, Mirja Merikari k04.

Tämä ArchiCAD-ohjelmalla tehty dwg-pohjapiirustus on ladattavissa internetissä. Tiedoston katseleminen käy esimerkiksi DWG TrueView -ilmaisohjelma.

Created with Web Album Generator