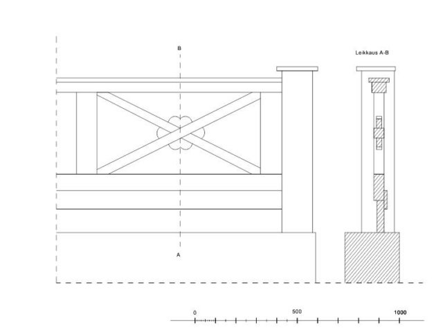
Kaidedetaljit.

Photograph

Mittauspiirustus. Kirkkokatu 20, Raahe. Julkisivu etelään. Kaidedetaljit 1:5. Mitattu 23.9.2005. Piirretty 28.11.2005. Oulun Yliopisto. Arkkitehtuurin Osasto. Arkkitehtuurin Historia II. Merja Erkkilä, Sanna-Mari Keskitalo, Heikki Polso K-04.

Created with Web Album Generator