Mittauspiirustukset 2005.

Photograph

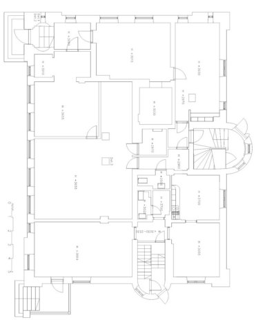
Oulun Yliopisto. Arkkitehtuurin osasto. Arkkitehtuurin historia II. Mittauspiirustus. Kirkkokatu 20 Raahe. Ensimmäisen kerroksen pohjapiirustus 1:50. Mitattu 23.9.2005. Piirretty 27.11.2005. Heikki Riitahuhta k02, Einari Sutinen k04, Mona Kautti k04, Mirja Merikari k04.

Created with Web Album Generator